HIGH-EXPOSURE COMMERCIAL SPACE CORNER POSITION WITH UNMATCHED POTENTIAL
- Mechanical Work Shop
- Automotive Services
- Trade Supply
Position your business for success with this versatile commercial property, superbly located on a prime corner site that guarantees maximum exposure and accessibility.
This is an ideal opportunity for a wide range of commercial uses including mechanical workshops, automotive services, trade supply, light industrial, warehousing, or showroom operations.
Key Features:
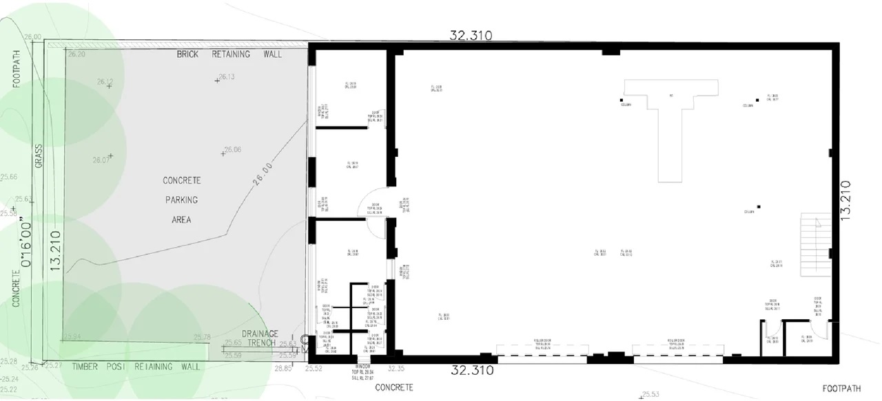
– Prominent Corner Location: Situated at a busy intersection with dual street frontage, this property offers excellent visibility from multiple angles, ensuring your business is seen by thousands of passing vehicles daily.
– Expansive Floor Area: A generous and open-plan layout provides plenty of room for operations, equipment, inventory, and customer interaction, giving you the flexibility to design the space to suit your specific needs.
– Multiple Entry Points: Featuring dual roller door access and separate pedestrian entrances, the property is designed for seamless workflow, easy loading/unloading, and customer convenience.
– High Internal Clearance: Ideal for businesses requiring vertical storage or the installation of heavy-duty equipment, with ample space for hoists, racking systems, or display areas.
– Ample Natural Light & Ventilation: Large windows and well-placed openings provide a bright and airy environment, improving workplace comfort and reducing energy costs.
– Secure On-Site Parking: Plenty of dedicated on-site parking for staff and customers, plus space for delivery vehicles or fleet storage.
– Highly Adaptable Zoning: Suitable for a variety of business types, including automotive, industrial, trade retail, warehousing, manufacturing, and more. (Subject to council approval.)
– Excellent Signage Potential: Maximize your branding with expansive signage opportunities on both street frontages to attract attention and establish a strong local presence.
This is a rare opportunity to secure a strategically located commercial space with all the right features to grow and support your business.
Whether you’re expanding, relocating, or launching something new, this property delivers the flexibility, exposure, and access that your business demands.
Contact us today to arrange an inspection or learn more about this standout leasing opportunity!










