Modern Living in the Heart of It All – Attention First Home Buyers and Investors!
Experience the best of modern living in this stylish one-bedroom apartment, ideally positioned in one of Bankstown’s most desirable locations.
Offering comfort, convenience, and exceptional value, this home is perfect for first home buyers or savvy investors seeking strong growth potential.
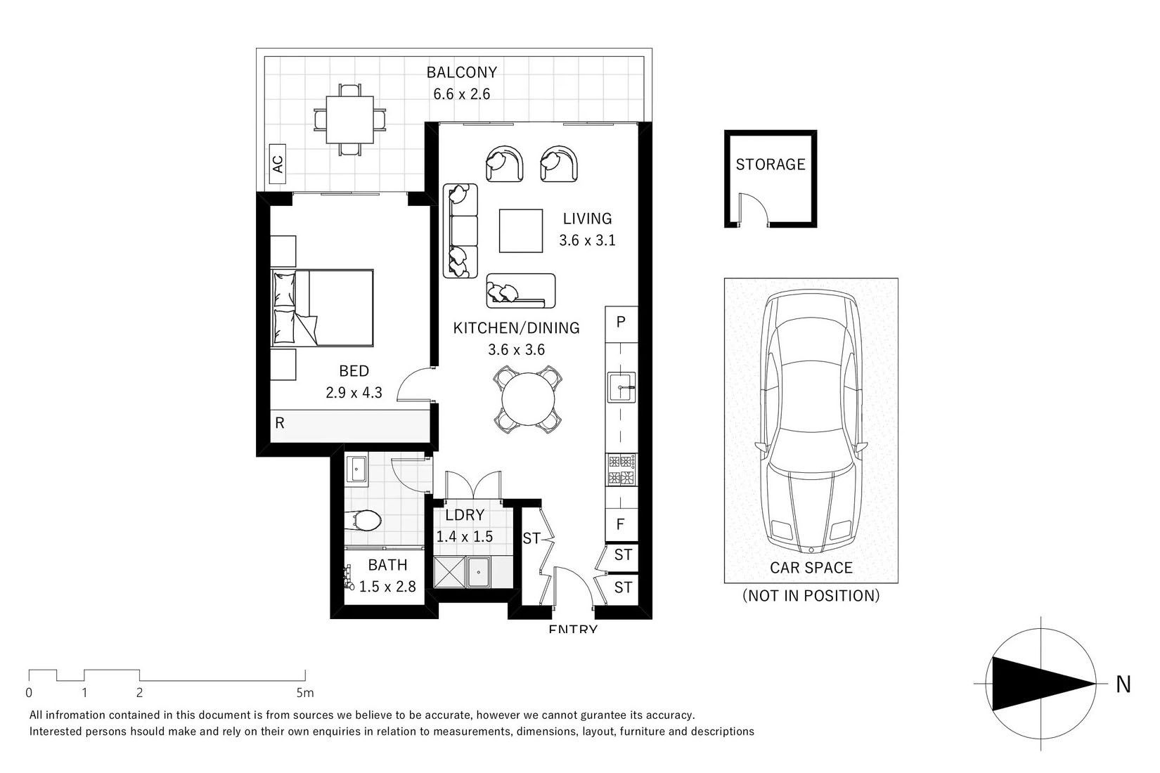
Enjoy an open-plan layout that seamlessly connects the living, dining, and kitchen areas, flowing effortlessly onto a large private balcony – ideal for relaxing or entertaining guests.
The contemporary kitchen features gas cooking and ample storage, while multiple air conditioners ensure year-round comfort.
The bedroom is well-proportioned with built-in storage, and the apartment includes an underground secured parking space plus an additional storage cage in the basement for added convenience.
Located just a short walk to Bankstown Central Shopping Centre, train station (soon to be upgraded to a metro station), and Western Sydney University, this property offers unmatched accessibility and lifestyle benefits.
Key Features:
– Spacious open-plan living and dining area.
– Large balcony for entertaining.
– Gas kitchen with plenty of storage.
– Multiple air conditioners.
– Secure underground parking + storage cage
– Prime location – walk to shops, transport, and university
This is an outstanding opportunity to secure a low-maintenance home or a high-performing investment in the heart of Bankstown.
Currently Leased @ $600 per week: Tenants willing to sign a new lease or provide vacant possession.
Low Strata: $646 per quarter (approx.)











