Turnkey house and land package
ADDRESS AVAILABLE ON REQUEST, AUSTRAL
Become part of one the fastest growing suburbs in the south west.
On offer is a Double Storey SMART Home and land package.
Located in a suburb that has seen incredible infrastructure growth and housing demand.
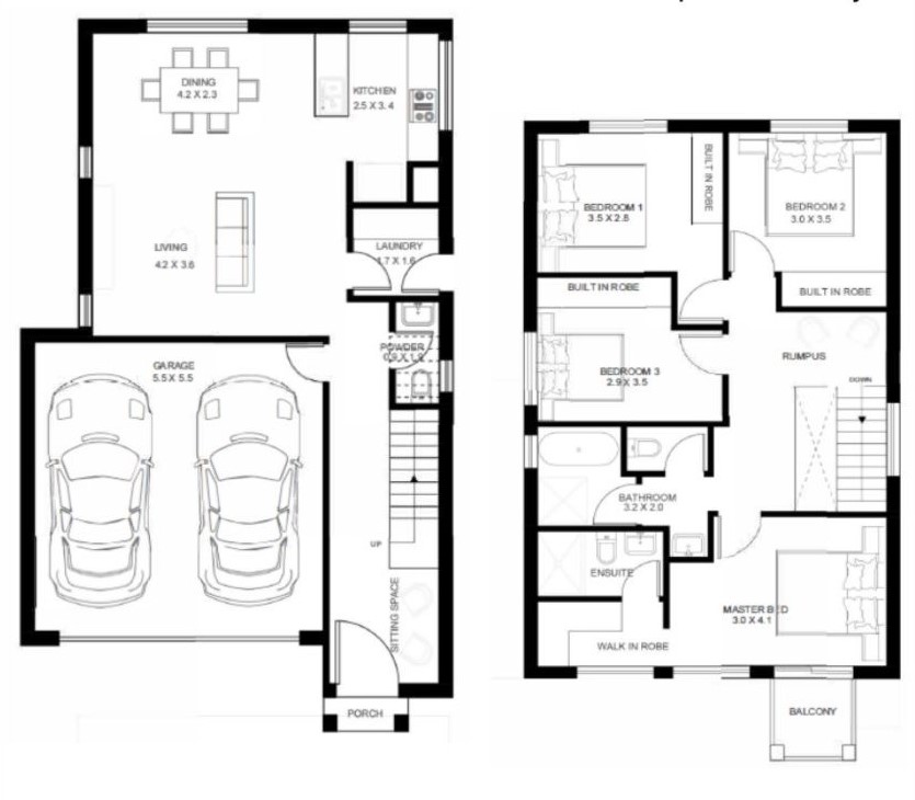
The home features –
– 4 spacious bedrooms
– Master bedroom with big walk in robe and en-suite
– Spacious kitchen with stone benchtops and stainless steel appliances
– Large Open Plan Living and Dining
– Choice of timber/tile/carpet flooring available
– Choice of Split System or Ducted air conditioning
– 2.7 m Ceiling height
– Turnkey – Fencing, driveway and landscaping all included
FREE Smart Home Upgrades include but not limited to:
– Smart downlights throughout homes
– Smart LED down light
– LED touch PowerPoints
– Smart doorbell with HD camera
– Smart front door handle
– Smart locks
– Smart garage door
– Smart Blinds
– Indoor security camera system and sensors
Land is registering in September 2021
Display Home Available for viewing. Call George on 0410 667 830 to book an inspection
Secure your Smart home today!


















