Located in an excellent corner block position in Smithfield. Opportunities exist to either buy a brand new architecturally designed built 5 bedroom house + 2 bedroom granny flat or buy the land as it is and build your own way.
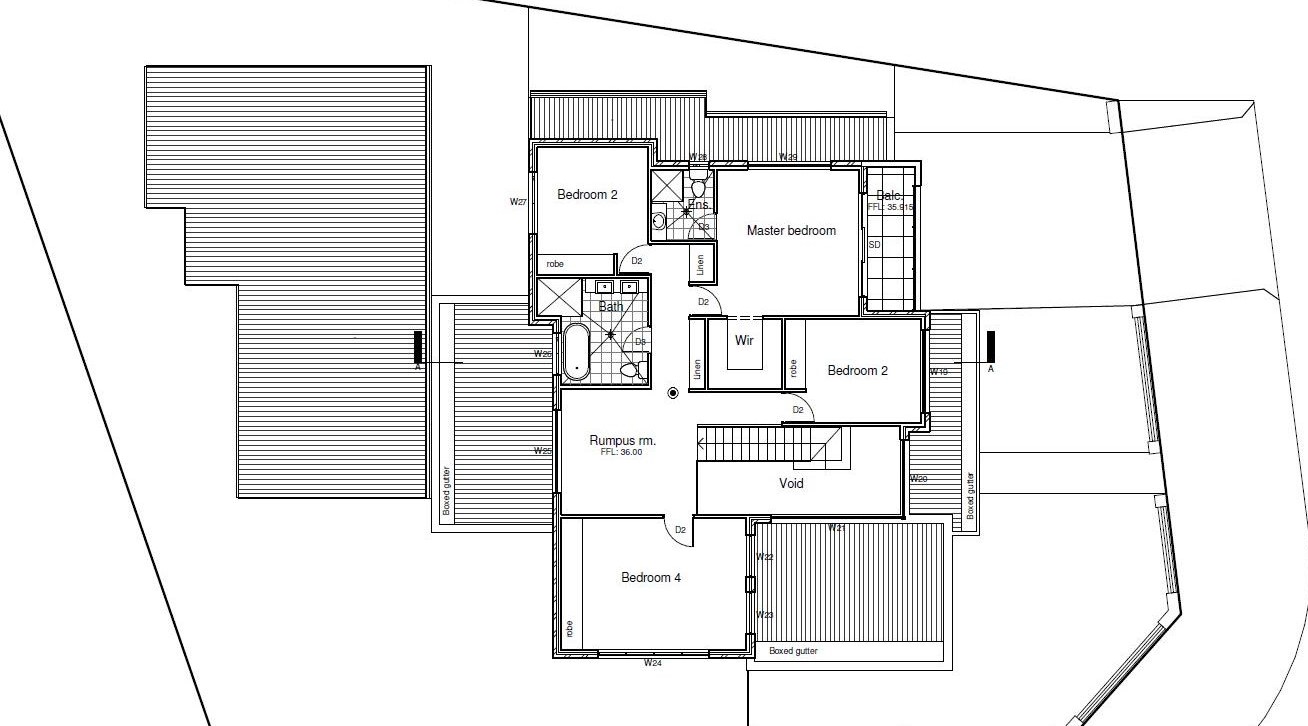
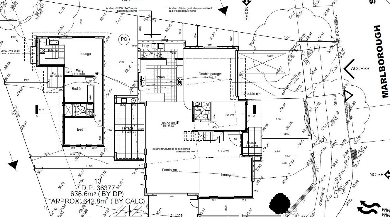
Features of the proposed building is as follows –
HOUSE –
– 5 bedrooms, 3 bathrooms
– All bedrooms with built in robes
– Master bedroom with en-suite and walk in wardrobe
– 40mm stone benchtops
– Tiled downstairs
– Carpeted upstairs
– Main bathroom with spa bath
– Alarm, intercom and cctv camera system
– Ducted air conditioning throughout
– Stainless steel appliances
– Double lock up garage
GRANNY FLAT –
– 2 Bedroom, 1 bathroom
– Lounge room
– Large kitchen with stainless steel appliances and stone benchtops
Enquire today!









