TAKE ADVANTAGE OF THE $25,000 HOMEBUILDERS SCHEME! – This development is eligible for the new scheme.
Parkside-Living, is a brand new boutique development in the heart of Wentworthville. Moments walk from Wentworthville train station and shopping centre.
Spanning across 4 levels, this development features top end inclusions, stylish modern interiors, and a great location. Construction has commenced and we anticipate completion late 2020.
First home owners can benefit from the first home loan deposit scheme, first home owners grant and stamp duty exemptions.
Stage 1 Release. Limited Time Only.
Features include –
+Boutique block consisting of only 24 apartments.
+Situated adjacent to Lytton Park & Wentworthville Community Garden.
+Tiled flooring and timber Flooring to bedrooms.
+Secured Parking & lock up storage
+ Smeg stainless steel appliances and stunning 40mm stone benchtops.
+ Floor to ceiling tiled bathrooms with semi frameless shower and bathtubs
+Generous sized courtyards to ground floor apartments
+Large Communal Area to the rear.
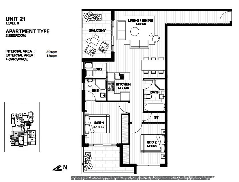
+Strata estimation – 1 bedroom – $451 – $519
– 2 bedroom – $530 – $595
Location –
– 750 metres from Wentworthville station and surrounding shops
– 250 metres from Wentworthville shopping centre
– 2 minutes drive to westmead hospital and childrens hospital
– 5 minute drive to parramatta Westfields
– 5 minute drive to Parramatta high school and atherine McAuley High School
– In the Wentworthville Public School Catchment area
Enquire today!!!








